
温哥华市议会今晚一致通过了一项重大变更,允许靠近天车鲁珀特和伦弗鲁车站的大型独立住宅区首次添加低层公寓和专门建设的可租赁住房。
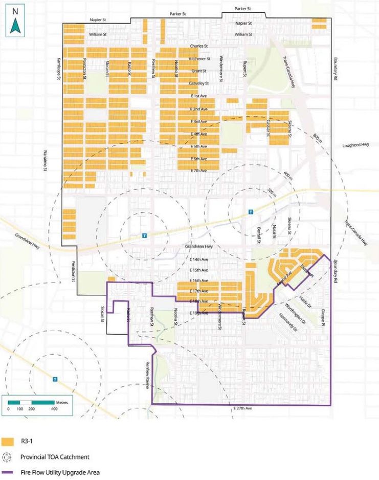
这项由温哥华市工作人员发起的重新规划涉及约2580个地块,分布在东温哥华大约200个城市街区内,尤其是哈斯廷斯-日出社区的南部和伦弗鲁-柯林伍德社区的北部。
目前,这些地块大多是独栋住宅,原先的规划限制了对其开发,仅允许建设独栋房屋、双拼房屋或小型多户住宅。
此次变更与高密度、以交通为导向的鲁珀特和伦弗鲁车站区域计划完全一致,该计划于2025年7月获得市议会一致通过。
去年夏天,市工作人员表示,他们将很快向市议会提交这项最初的市政府发起的重新规划,免去了业主、建筑商和开发商为此类低层住宅形式而申请逐个地块重新规划的麻烦。现在,他们可以跳过耗时昂贵的重新规划申请,直接申请开发许可证。市工作人员表示,目的是简化流程,加快在天车附近建设更多住房的速度。
根据新批准的规划政策,绝大多数地块的建筑高度限制为六层。此外,只有六层高的分层公寓和100%保障的市场租赁住房项目被允许出现。
在靠近两个天车站的有限地块上,最多允许八层的高楼建筑,前提是项目必须是100%社会住房或混合市场租赁和低市场租赁单元的保障性租赁住房。



此次变更并不意味着每栋单户独立住宅都会被取代,但它允许业主选择重新开发。
在今晚的公众会议上,ABC市议员莎拉·柯比-杨表示支持市政府发起的重新规划,但对关键的住房政策变更将推迟到后面表示一些不满,因为在经济艰难的情况下,施工进展缓慢。她提出,像小型多户住宅和填充住房选项将有助于推动项目建设并使住房更具可负担性,但这些工具要到2026年晚些时候才能准备好。
尽管她理解分阶段进行工作的必要性,但柯比-杨表示,加快这些变更的进程可以帮助刺激住房建设,成为经济复苏的助推器,尤其是在建设进展缓慢的情况下。
此外,市工作人员的报告指出,某些区域仍需要升级消防基础设施,才能在各处推动更高密度的住宅开发。
在区域计划的南部,现有的供水系统尚未能够满足更大低层建筑的消防安全要求。因此,这些区域将继续限制为较低密度的多户住宅开发,直到市政府完成供水和消防流量升级,市工作人员表示,这可能需要数年时间。一旦升级完成,市工作人员计划进一步发起重新规划,以便在这些独立住宅区内允许建设低层多户住宅。

市议会还批准了新的建筑规则以保护通过该地区东西流淌的斯蒂尔溪,这条溪流邻近天车站。新的建筑开发将面临地下停车位和地下室的更严格限制。
建筑设计需确保不会排走溪流的地下水,市工作人员表示,夏季时溪流水位已经有所干涸。此外,未能渗透入地下的降水也会对区域下水道系统造成压力。
在区域计划内位于洪泛区的工业用地,市议会批准了允许建筑稍微增高的变化。由于洪水规则要求某些建筑要高于地面,因此开发商表示他们损失了可用空间。新规则允许增加高度以补偿这一点,而不增加整体密度。
到2026年后,市工作人员将向市议会提交一份专注于区域计划内低层混合用途建筑机会的报告。
近年来,在其他最近的区域计划中,市政府发起的大规模重新规划也发生在其它地区,包括在坎比走廊计划下的天车金爱德华站附近的镇屋区,以及最近在坎比走廊计划的橡树岭地区和百老汇计划的各种区域内针对4300个地块的低层、中层和高层住宅形式。
